Používáme cookies k optimalizaci našich webových stránek a našich služeb. Další informace o cookies najdete zde.

Nastavení


RD TÁBOR-SEDLÁČKOVA ULICE

RD TÁBOR-SEDLÁČKOVA ULICE

                                                                               

 

 

                                                          Cena : 10.300.000 ,-Kč

Popis nemovitosti

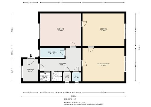
Hledáte nový domov, který je připraven k okamžitému nastěhování. Máme pro vás nabídku rodinného domu v Táboře na Blanickém předměstí, ulice Sedláčkova. Dům je o dispozici 4+2, má dvě nadzemní a jedno podzemní podlaží.  K domu náleží udržovaná zahrada s bazénem, krytá pergola s venkovním posezením a grilem, prostorná dílna, garáž a sklad. V 1 NP se nachází kuchyně s vybavenou kuchyňskou linkou, dva pokoje, komora, WC, koupelna s vanou. Po schodech vystupujeme do 2NP, kde jsou k dispozici dva pokoje, kuchyně, šatna a WC.  V mezipatře se nachází menší pokoj, který může sloužit jako šatna, skládek, prostor na sušení prádla nebo jako zimní zahrada. V podzemním podlaží se nachází kotelna, uhelna a prostor posilovny. Dispozice domu je znázorněna na přiloženém půdorysu v inzerci, doporučuji shlédnout virtuální prohlídku. Dům prošel kompletní rekonstrukcí – nová střecha, plastová okna, voda a odpad v plastu a nová elektřina. Nemovitost je napojena na veřejný vodovod, kanalizaci. Ohřev vody zajišťuje elektrický bojler. Topení je zajištěno elektrokotlem nebo kotlem na tuhá paliva, v koupelně je podlahové topení.  Dům se nachází ve velmi klidné lokalitě v zástavbě rodinných domů, v pěší dostupnosti do centra Tábora, na vlakové a autobusové nádraží. V okolí je k dispozici veškerá obřanská vybavenost.  Pro domluvení prohlídky kontaktujte makléře ing. Vendulu Kümmelovou.

3D scan

                                                      Neváhejte s prohlídkou bytu

                                     kontaktujte makléře zakázky Ing. Vendulu Kummelovou

                                                                 T: 777 965 985

                                                       V.Kummelova@atlastabor.cz

Vendula Kümmelová

Nemovitost v mých rukou? S radostí a bez starostí.

Jsem vaše osobní realitní makléřka a spolehlivá průvodkyně světem realit.


Vendula Kümmelová

Kontaktní formulář

Stáhnout PDF